González Construcciones

Construcción y Arquitectura

Hola. Mi nombre es Cecilia soy Maestro Mayor de Obra y formo parte de González Construcciones.
Trabajo en Diseño de Planos de Gas (residencial, comercial)
Realización de Planos municipales.
Diseños Arquitectónicos a medida
Desarrollo y ejecución de Proyectos
Trabajamos con responsabilidad, compromiso y orientando al cliente en cada etapa del proceso.
Si necesitas un plano, un diseño o proyecto no dudes en contactarme.
Estoy para ayudarte,

Pedir presupuesto

Solicitar presupuesto

Se le enviará el mensaje al prestador y tendrás acceso a sus datos de contacto completos en caso de querer contactarlo por otros medios.

¿Para que zona?


¿Sobre que servicio?




Trabaja con Administraciones de Consorcio
Presupuestos sin cargo
Acepta pago con tarjeta de credito
Servicios de emergencia

AREA DE TRABAJO

  • Zona Sur Gran Buenos Aires
  • Zona Norte Gran Buenos Aires

SELLOS DEL PROFESIONAL


..Hola, soy Maestro Mayor de Obras y me dedico a brindar soluciones integrales para todo tipo de proyectos de construcciones, reformas y instalaciones.
Ofrezco los siguientes servicios:
_Proyectos de obra nueva y ampliaciones
_Planos Municipales y gestiones para habilitaciones
_Planos e instalaciones de gas
_Instalaciones eléctricas
_Trabajos de albañilería y ejecución de obras completa ... Ver más



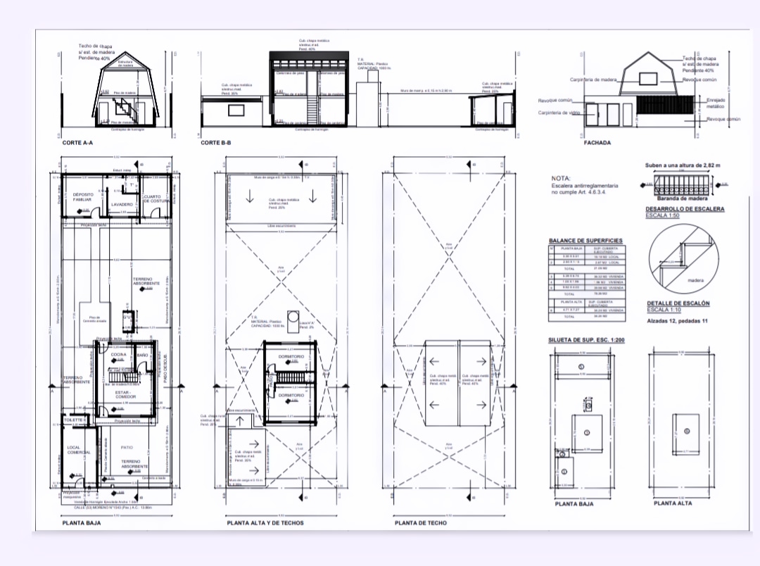
GALERIA



CONSTRUCCIóN Y ARQUITECTURA

AÑOS EN EL SECTOR: 2 años

SERVICIOS

  • Piscinas.
  • Direccion de obra.
  • Planos y proyecto.
  • Construccion obra nueva.
  • Reformas y ampliaciones.
  • Diseño y Arquitectura.
  • Renderista.
  • Documentación ejecutiva de Obra.
  • Steel framing.



GARANTIAS

Garantía de mano de obra de 30 días desde la terminación del trabajo.


MATRICULAS Y HABILITACIONES

Matricula de Maestro Mayor de Obra, de gas.


ESTUDIOS

Tecnicatura MAESTRO MAYOR DE OBRAS.




REPUTACIÓN


(1 calificación)

Comentarios sobre trabajos realizados


Veronica Fernandez

Llamamos a Cecilia para que realice la remodelación y ampliación de nuestra vivienda en Quilmes. Quedamos encantados con el servicio y el nivel de profesionalismo, porque nos entregaron la vivienda en el tiempo estipulado, con buenas terminaciones y el valor acordado. Super recomendable. 05-06-2025 18:04.

Calificación:



PREGUNTAS FRECUENTES


¿En qué tipos de trabajos está especializado?

Especializado en Planos Municipales en CABA y Gran Buenos Aires, gasista de primera categoria, plomeria, pintura, muebles, Obras tradicionales, piscinas H° A°
Obras en seco como Steel Frame.


¿Por qué un cliente debería elegirlo?

Un cliente debería elegirme porque me enfoco en la responsabilidad, el cumplimiento de los plazos y la calidad en cada detalle escuchando al cliente, asesoro y acompaño en el proceso como si fuera un proyecto propio.


¿Cómo es el proceso respecto a presupuesto, visita, adelantos, depósitos y pago final?

Realizo una primer visita con el cliente, para tomar nota y requerimientos del trabajo a realizar. Luego se confecciona el presupuesto. Los pagos serán según avance de la obra o trámites.


¿Qué información necesita para poder brindar un presupuesto detallado?

Documentación del lote, como escritura, servicios...


¿Usted se encarga de la compra y traslado de materiales necesarios?

El constructor a cargo de esa tarea o puede quedar a cargo del cliente.


¿En qué días y horarios trabaja?

Horarios. de Lunes a Viernes de 8.00hs a 15.00hs


¿Qué medios de pago acepta?

Transferencias y/o efectivo


¿Como está conformado su equipo de trabajo?

Mi equipo esta conformado por Arquitectos y Maestro Mayor de Obra


¿Trabaja con algunas marcas de materiales en particular? Si es así, ¿con cuáles?

Trabajo con materiales de primera marca en el mercado, Loma Negra, Acindar, Aquadut, Cal Cacique, Hidrofugo IGGAN.


¿Cómo definiría su estilo a nivel arquitectura?

Muy responsable en cada trabajo a ejecutar.


¿Con qué elementos de seguridad trabaja?

A mi personal le saco un SEGURO AP con cláusula no repetición en obras pequeñas. Le entrego ropa de trabajo, guantes, casco reglamentario y lentes de protección de vista, tapones en oídos si utilizan herramientas con ruido.
Cuento con un técnico de seguridad e higiene semanalmente con una charla obligatoria.


¿Se encuentra usted habilitado legalmente para firmar planos? ¿Hasta qué dimensiones?

Si, edificaciones hasta tres plantas.


¿Subcontrata algunas tareas? ¿Cuáles?

Tareas específicas como instalaciones eléctricas, plomería, yeseros,
Depende la obra cuento con mi equipo de trabajo


Más perfiles profesionales


Debe elegir su área


Chat